詳細資訊

權狀面積 : 257.40 坪
管理費 : 80 元
室內面積 : 156.65 坪
車位清潔費 : 500 元
總售價 : 7,722.0 萬
房屋售價 : 7,722.0 萬

 

特色說明

1.大同路公車線多

2.距南港展覽館捷運站4站

3.近北一高 北二高 環快

4.園區管理佳

5.卸貨區有卸貨碼頭

 
 

台灣科學園區出售

7,722.0

權狀面積 : 257.40 坪
室內面積 : 156.65 坪
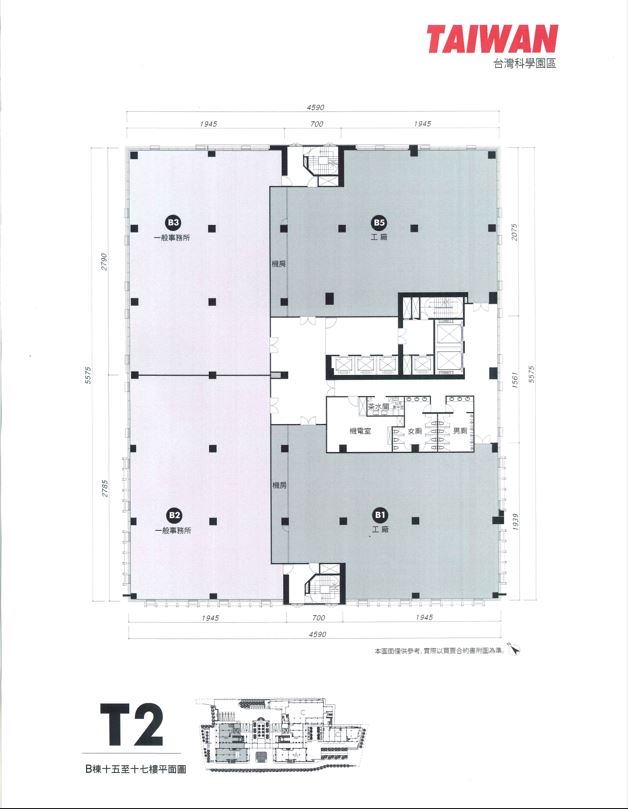
樓別/總樓層 : 15 F / 17 F

業務聯絡

林淑玲
opal@recom.com


大樓基本資料

台灣科學園區T1.T2

類似物件

  • 權狀 82.99
  • 室內 46.80
  • 車位數 0.00位
特色
1.近南港軟體園區

2.大同路公車線多

3.一層兩戶 使用單純


  • 權狀 67.82
  • 室內 38.47
  • 車位數 2.00位
特色
1.近劍南捷運站,松山機場,堤頂大道,中山高,南來北往,交通便利。

2.大直美麗華商圈.

3.位於大直重劃區的新富大道─樂群二路,鄰全聯總部,宜華國際飯店,白天鵝豐匯建案,繼信義計畫區後最具潛力的商辦聚落。


  • 權狀 195.05
  • 室內 119.98
  • 車位數 4.00位
特色
1.汐科車站旁 近國道 省道 交通便捷

2.接駁車至南港展覽館捷運站30分鐘一班

3.B1美食街 家樂福 屈臣氏

4.大廳氣派 門面佳

5.之11有陽台可進出水

6.面大同路 景觀佳

7.用途:一般事務所

8.已加裝冷氣送風機